Commission to consider Miloli‘i park improvements

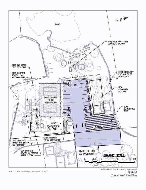
A map of the existing park, with changes labeled.
Subscribe Now Choose a package that suits your preferences.
Start Free Account Get access to 7 premium stories every month for FREE!
Already a Subscriber? Current print subscriber? Activate your complimentary Digital account.

More than $1.7 million in improvements are coming to Miloli‘i Beach Park in Captain Cook.

The Leeward Planning Commission today will discuss a series of repairs, replacements and enhancements intended to improve accessibility at Miloli‘i and bring the park into compliance with guidelines set by the Americans with Disabilities Act.

Parks and Recreation Director Maurice Messina said the project is one of the county’s final two ADA projects to be completed after a Big Island resident in 1997 sued the county in federal court in order to enforce ADA mandates in county facilities.

Like those other ADA projects, the Miloli‘i project is funded through bonds, with an estimated project cost of $1.75 million, although Messina said the design — and consequently, the price tag — hasn’t been finalized.

According to an extensive background report for the project, the current state of the park leaves much to be desired, with its parking lot, sidewalks, ball courts and more described as being in a state of disrepair, and the park’s restroom facilities need to be replaced entirely.

“The current restroom facility is just too small to be expanded,” Messina said. “If it was like a two-stall situation. Maybe that would be big enough to make ADA-compliant, but as it stands, there just isn’t enough space.”

Meanwhile, a pavilion in the park is still an unpermitted structure despite having been built before 2006 and, in any case, is located in the flood zone and therefore also needs to be replaced.

The project also would reconfigure the parking lot and sidewalks to be ADA-compliant, rebuild and resurface the ball courts and install fencing around them, build a new playground, designate a “boat turnaround area,” and replace the park’s water storage and pumps.

Messina said the county has held several public meetings with the Miloli‘i community to shape the project, and that the Leeward Planning Commission is the last major hurdle before construction can begin.

The commissioners today will discuss a pair of requests by Parks and Recreation for a special management area use permit and a shoreline setback variance to allow work in the area.

Meanwhile, Messina said the only other county facility still to be updated to ADA compliance after Miloli‘i is the South Hilo Maintenance Baseyard. That project, he said, could start around January, although he added the logistics for it will be more complicated than other parks.

“Maintenance is our busiest department, so it’s going to be complicated, figuring out where all these trucks will go during construction,” Messina said.

Email Michael Brestovansky at mbrestovansky@hawaiitribune-herald.com.